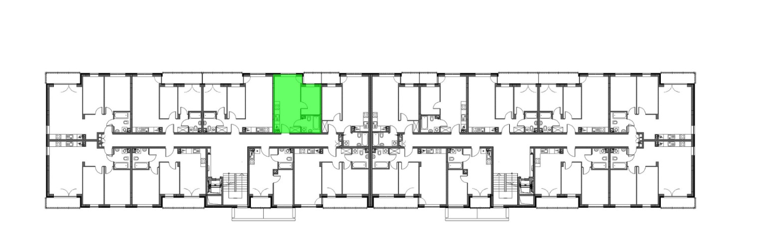
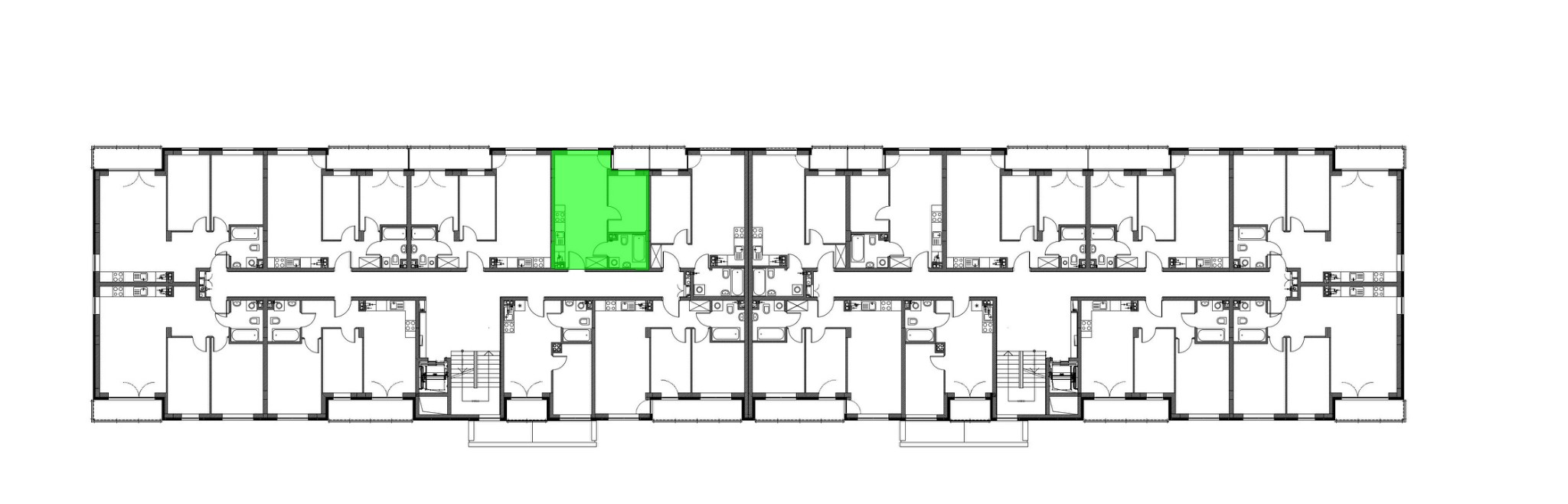
cena Mieszkania

379 750 PLN

cena za metr kw.

12 500 PLN

Budynek Konik Polny Budynek A
Powierzchnia 30,38 m2
Piętro 1 (Piętro I)
Pokoje 2
Całkowita cena brutto
379 750 PLN